Ingénieur énergie & dev tech, je conçois des solutions performantes et résilientes.Fort d'une double compétence en ingénierie énergétique et développement technologique, je conçois des solutions mêlant automatisation, supervision, intelligence artificielle et outils numériques pour améliorer la performance et la résilience des systèmes.
Heriot Watt
Orkney Islands - 2019
Cours suivis :
Polytech Nantes
Nantes - 2019
Cours suivis :
Issue d'une formation mécanique, thermique et énergétique, j'ai su développer au fil des années des compétences qui m'ont permis de m'adapter à différents secteurs d'activité, notament en nouvelles technologies.
Depuis janvier 2024, j'occupe le poste de Responsable technique de la Business Unit SMART chez Solstyce. Mon objectif principal est de concevoir et faire évoluer la solution interne de pilotage énergétique, en intégrant des briques d'automatisme, d'optimisation énergétique et d'IA.
Lors de mon aventure chez Solstyce, j'ai occupé le poste de responsable du bureau d'études pour la région Auvergne-Rhône-Alpes. J'ai structuré et développé une équipe jeune pour faire monter en compétence l'activité études techniques, principalement dans le domaine photovoltaïque à grande échelle (250 kWc jusqu'à plus de 1 MWc), sur des projets industriels et tertiaires, tous types de raccordements confondus.
Dans le cadre de mon double diplôme en sciences de l’énergie, j’ai étudié àHeriot-Watt University – Orkney Islands, un campus spécialisé dans les énergies renouvelables marines. Cette formation immersive, en environnement insulaire, m’a permis d’aborder les problématiques énergétiques sous un angle technique, socio-politique et environnemental. J’ai mené plusieurs projets concrets autour du développement durable, du stockage d’énergie, et de l’aménagement énergétique territorial, en lien avec des problématiques réelles.

Détection automatique d’anomalies sur panneaux solaires à l’aide de vision par ordinateur et machine learning embarqué (TensorFlow, OpenCV, Raspberry Pi).

Analyse comparative des politiques énergétiques du Danemark et des Pays-Bas : consommation, production, fiscalité, transition énergétique et projets d’avenir.
Au cours de mon parcours en école d'ingénieur, j'ai eu la chance de participer au projet Polyjoule. Le principal objectif de cette association étudiante est de concevoir, réaliser et optimiser des véhicules prototype à très faible consommation énergétique via notamment la fabrication de pile à combustible à hydrogène. J'ai pu participer à la conception du véhicule mais j'étais également responsable de la partie communication.

Étude sur l'application de la reconnaissance d'image pour détecter des anomalies sur des installations solaires.

L'application Polyjoule a été réalisée dans le cadre d'organisation de concours.
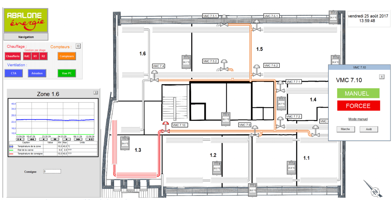
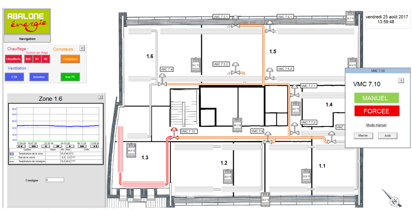
Lors de mon premier véritable emploi d'ingénieur, j'ai intégré la structureAbalone Énergie, une entité du groupeAbalone spécialisée dans l'autonomie énergétique des bâtiments. C'était ma première expérience concrète en tant qu'automaticien, où j'ai pu me confronter à la réalité du développement d'IHM, de la programmation en langage industriel (automates et logiciel Rockwell Automation) et de l'utilisation de Python pour le traitement de données. Mon rôle principal était de remettre à niveau le système de gestion technique centralisée (GTC) d’un bâtiment à énergie positive.
Obtention de mon bac scientifique mention "très bien"